Skip to main content

Palazzo Condominium

Palazzo condos for sale in Panama City Beach Florida

Palazzo condominium in Panama City Beach Florida is located on the west end of Panama City's soothing white sandy beaches. Unlike many condominiums, low density was a focus. There are only 129 units in Palazzo and everything is directly gulf front. The building consists of four floors of parking with another 17 floors of units above it. The 1, 2, and 3 bedroom units are elegant and include just the right touch of interior finishes. like 9 to 10ft ceilings.

Units for sale

1 bedroom condos 2 bedroom condos 3 bedroom condos

Floor Plans

1 Bedroom, 2 Bathroom Plus Bunk room 1.196 Square Feet
2 Bedroom & 2 Bath w/ Bunk Room Interior Residence 1.598 Square Feet
3 Bedroom & 3 Bathroom Interior Residence 1.721 Square Feet
3 Bedroom & 3 Bath East End Residence 2.078 Square Feet
3 Bedroom & 3 Bath West End Residence 2.289 Square Feet

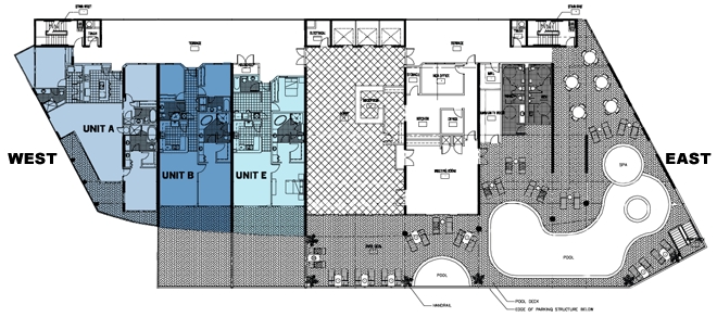
Building layout by floor

lobby level building layout
2nd level building layout
3rd - 17th floors building layout

Amenities

Palazzo Condominium
Pool
Palazzo_01.gif
Palazzo_02.gif
Palazzo_03.gif
Palazzo_04.gif
Kitchen
Entrance
Parking Lot Entrance

There is an impressive array of amenities at Palazzo. There is covered gulf side parking, a conference room, two gulf front waterfalls, crown molding, and granite kitchen countertops. Whether you are enjoying the brilliant sunshine of the beach, the refreshing tropical pool, or perhaps a light work out in the gulf side fitness center, you'll be impressed with what Palazzo condominium has to offer.

This first class resort has a magic all its own. You will be delighted by the elegant, comfortable and very spacious 1, 2, and 3 bedroom floor plans complimented by thoughtful interior touches that are simply astounding. Palazzo, a complete destination, offers an impressive array of gulf front amenities. These include on-site management services, elevated tropical gulf front pool and spa, a decorative waterfall feature, conference space, full fitness center and covered gulf side parking.

Features

  • Low density, only 129 units directly on 220 feet of the Gulf of Mexico
  • Elevated gulf front heated pool and hot tub
  • Gulf front fitness center overlooking pool deck and gulf
  • Large gulf front lobby with on-site check-in and management
  • Gulf front parking for all units (172 covered spaces on south side) plus additional guest parking
  • Three high speed elevators
  • Meeting room
  • 44 external owners storage sold separately

Interior unit features

  • Decorative ceramic tile in foyer, kitchen, and all baths
Kitchen
  • Raised panel kitchen cabinetry
  • Granite kitchen countertop
Livingroom
  • 9' ceilings with 9' sliding glass doors in all units
  • 10' ceiling on top floor penthouses and 1st floor
  • Crown molding in living areas and master bedroom suites
  • Wired for high speed access
Baths
  • Cultured marble countertop in all baths
  • Garden tub and separate shower featured in all units

Location

Palazzo Resort Condominium in Panama City Beach is located on the west end of the Beach. It is roughly 1 mile west of Highway 79 on Front Beach Road at 17281 Front Beach Road.

  • Hits: 65638